Le caratteristiche
- Struttura portante in tavole di legno massello certificato.
- Tetto di copertura in telo di PVC Block-Out.
- Teli frontali e retro in tessuto policotone con aperture con cerniera e finestre in Cristal.
- Pareti esterne e Pavimenti in doghe di legno massello d’abete.
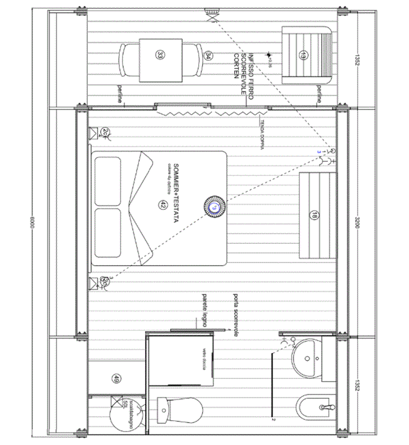
- Bagno Compy completo di lavabo, wc, vasca 70×120 rivestita in legno con doppio erogatore a nappa e tendina a raggiera, bollitore ad accumulo da 15/30 litri.
- Iimpianto elettrico e d’illuminazione con lampade a led e faretti.
- Mobili in legno massello disegnati su misura
- Mobile minibar in legno con frigo sottopiano
- Letto matrimoniale 140/16×190 con giroletto in tessuto di juta
- Letto a castello 70×190 nella versione 4 posti
- Divano in tessuto nella versione 3 posti
- Mobiletto abbendiabiti in legno e corde di juta
- Poltrona Glant in legno e sedute in ecopelle o tessuto di juta
- Tavolo e sedie in acciaio verniciato per l’esterno




































